Future Seoul / Hangang
In a place of spatial instability such as Seoul, the Future is a parameter of the present. The city's shape, its geography and all architecture are constantly renewed. Society as a whole, its organization and social norms are evolving at such a fast pace that the Context is an unstable landscape. For this we created a studio where Future Seoul is studied, where the students can freely invent their future society, a defamiliarized place where to invent new types of programs. 
Seoul National University / Third Year Studio / 2019 - 2022
Lee Yeonjeon - Religious Nutrition Center
Lee Yeonjeon - Religious Nutrition Center
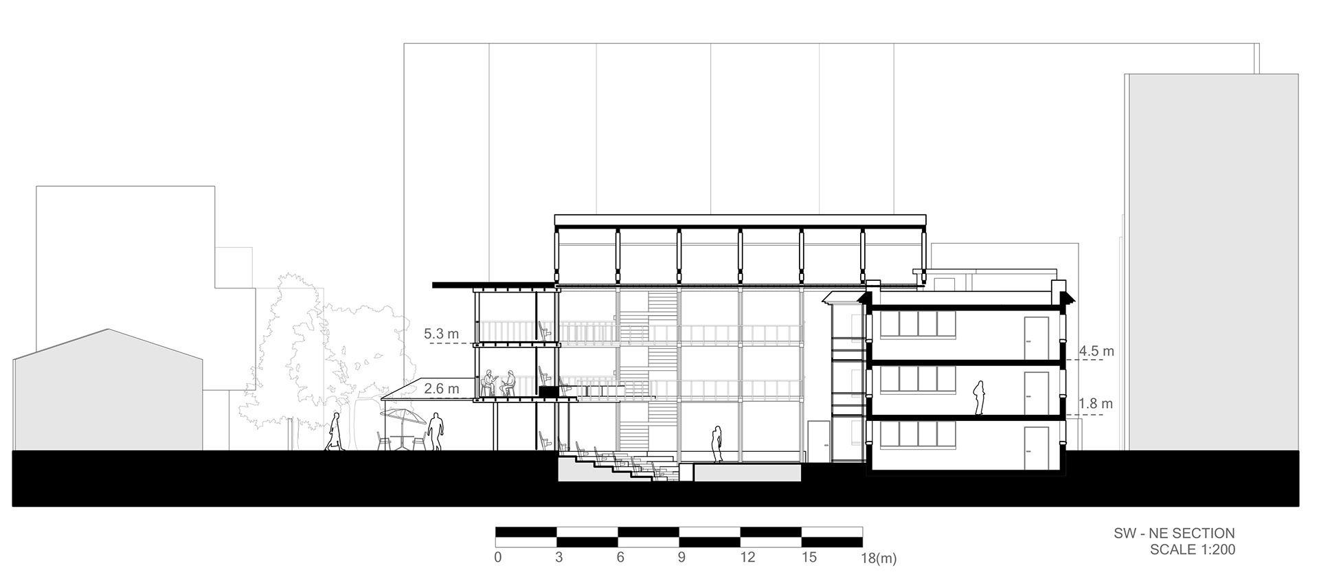
Section
Section
plan
plan
Section
Section
Daniel Maaroufi - Organic Spaceship
Daniel Maaroufi - Organic Spaceship
New New Babylon in Seoul
New New Babylon in Seoul
Amelie Burniard -  Library After the Flood
Amelie Burniard - Library After the Flood
 Library After the Flood
Library After the Flood
 Library After the Flood
Library After the Flood
 Library After the Flood
Library After the Flood
 Library After the Flood
Library After the Flood
Marina - Meditation Center
Marina - Meditation Center
Lee Soomin - Health and Culture Library - 2100
Lee Soomin - Health and Culture Library - 2100
Lee Soomin - Health and Culture Library - 2100
Lee Soomin - Health and Culture Library - 2100
Lee Soomin - Health and Culture Library - 2100
Lee Soomin - Health and Culture Library - 2100
Site : Nakwon SangHa
Site : Nakwon SangHa
Theater in Hongdae / Seoul
Mangwon - Hongdae is one of the neighborhoods where contemporary Korean culture is made. Korean Indie-Rock, Pop, Dance music are all first made in the small alleys where a myriad of clubs, practice spaces and art schools reside. Mangwon, originally a neglected working-class neighborhood, it brims with social life and attracts party-goers from the entire city. Students take time to explore, choose a site, develop a theater / music venue according to their understanding of the program, social and physical context.
Seoul National University / Third Year Studio / 2018 - 2022
Hongdae Neighbourhood
Hongdae Neighbourhood
Hongdae Neighbourhood
Hongdae Neighbourhood
Hongdae Neighbourhood
Hongdae Neighbourhood
Dancing In NowhereLand
In order to design within the process of town-planning, sometimes architects have to base themselves on the weakest of contextual information. In the outskirts of Suwon, a 10.000 people neighborhood is being planned from a tabula-rasa of rice fields, junkyards, disused factories. History, geographical information has been blurred into an extended non-place. Students have to rise to the challenge and create a meaningful theater space, whether starting by looking for contextual clues or by creating internal programmatic / compositional forces. The starting point is the stage itself, with a production design exercise.
Seoul National University / Third Year Studio / 2021 - 2022
Gwangmyeong Eco-Design Workshop
Each year High-school students are selected to follow an intense 5 days course in which they learn about space design, nature as an engineer, and ecological design. They learn to work hands-on, in a communal way, where individuals learn to cooperate rather than compete, unlike most of Korean education today. One to one scale prototypes are made and discussed with designers guest-critics.
Gwangmyeon Upcycle Art Center / 2016 - 2022
Back to Top